I love the saying that all good things come to those who wait. Because the reality is most of them do. And when it comes to a custom remodel that is very much true. Our first look at the Glengrove + Hamilton Project was in November of 2019. This was our first in-home consultation where Michael and I learned the full scope of the project and what our clients were looking to do with their home. On this project we got to touch their entire second floor and due to some major water damage part of their first floor too! But as always before we get into the spaces too fast let’s take a look back where they started when we first visited in November of 2019.








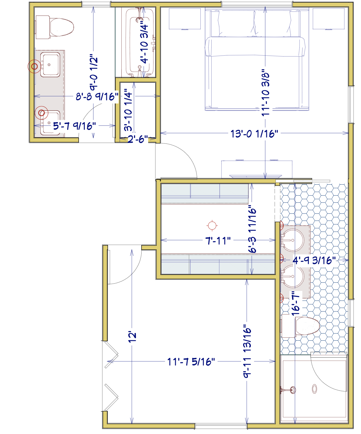
To start this project off we took measurements of their existing space. From there we created the as-built plan for the project. This allows our team to see exactly what the space looks like in its current state.
We continue by ideating and bouncing ideas off each other trying to create the most functional and purposeful space for our clients everyday lifestyle. For our Glengrove + Hamilton clients a larger master bathroom was a must. Their current bathroom situation just wasn’t working. The long and narrow entrance with the door constantly in the way! Also, the need for a large closet space that the couple could actually share was something they would love to have happen.
Here’s what we came up with.

By moving the entrance of the master bedroom over ever so slightly we were able to create a walk in closet space. From there we moved the shared wall with the office and bathroom to create a larger bathroom space. We rearranged the bedroom and office layout to make them more welcoming and functional as well. In the kids bathroom we increased the vanity and moved the toilet slightly to meet new codes!
The overall goal for the kids bathroom was to give it a much needed update, while still keeping in mind that two children were going to occupy the space at the same time. We wanted to create a modern space using black, white and gray hues while providing some life through a vintage rug and some incredible scribe tiling!

The home office needed to be very functional yet have some much needed personality. In here we used a gallery wall to create the overall vibe. We paired that with a wooden desk and vintage rug.

The master bedroom needed to go from what felt like a college dorm room to an adult retreat! This meant everything in here would be brand new. We kept the paint and bedding very neutral. This allows for the soft blue and green colors of the rug to create a real presence in the room.

Well, this space was in much need of an update. We wanted to create a clean modern look without the bathroom feeling sterile. To do this we landed on large scale concrete looking tiles for the floors and black round penny tiles for the shower floor and wall. We paired this with a walnut vanity and another incredible vintage rug!

We are looking forward to bringing you with us on each of these reveals! For even more behind the scenes things make sure to follow along over on Instagram! Until next time.
Much Love –
Danielle
Clark + Aldine is fully licensed and insured.
© 2026 Clark + Aldine | Interior Design Websites by Formcode | Site Map · Privacy Policy · Terms and Conditions