November 2020 marks 2 years of us running Clark + Aldine full time. It has been a wild journey so far and we are beyond excited to bring you with us on our next big chapter, our first commercial space. This space came out of complete necessity. Up until this point we’ve been working out of our garage and our home as our office acting respectively as our workshop and office. They’ve both been good to us. But as we’ve grown our team and expanded our brand we can no longer call home the office too. Today we are going to take you into what our studio looked like when we got it and exactly what our plans are for this beauty!
Let’s take a look!


This space pretty much sold us. Michael outgrew our garage workshop a long time ago. Not sure what we are most excited about here, the fact that we will actually have a paint booth, the amount of space we have to create or the hvac which runs into the shop!


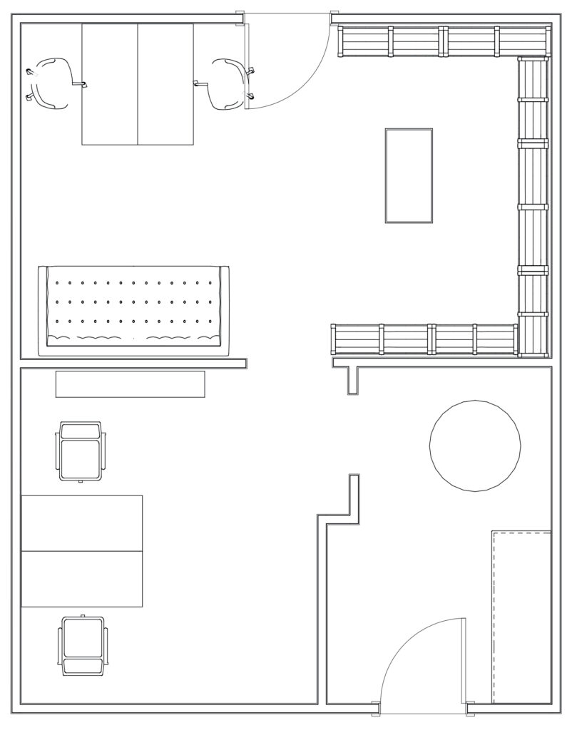
We plan for this to be the main entryway into our studio. Think small floating bench with hooks to the left with storage underneath and above. To the right will be a small kitchenette area for filtered water and coffee, of course! The end of the entry area will be a round table for our team or possible small desk for our dudes to do virtual learning this Fall.


Since our brand has multiple sides we found it fitting to have more than one space to create in! Welcome to our content and design studio. This is where much of the magic will happen. We plan to house 4 desks for our team with a creative space for brainstorming, creating and designing. This will also be where we will house all design materials…yes to no longer having things in our basement.

Now that you’ve had a chance to see the stunning befores it’s only fair to talk about how we plan to actually transform this one.

For both of us the major eyesore came in two areas: the drop ceilings and flooring. Both of which we’ve got a solid plan for. We plan to remove all the ceiling tiles and awful fluorescent lighting and spray the grid to get rid of the smoke stains. In place of the ceiling tiles and fluorescent lighting we are going to use wood and recessed lighting! We promise to give you a full how to on that one. For the floor we are going to replace the carpet with luxury vinyl plank flooring.
We are going to add our slat design to the office in two spaces; one horizontal and the other vertical to cover the windows in the office that feel weird and out of place.
We are so geeked to get into this space and cannot wait to show you more!
Much Love-

Clark + Aldine is fully licensed and insured.
© 2026 Clark + Aldine | Interior Design Websites by Formcode | Site Map · Privacy Policy · Terms and Conditions